GM Service Manual Online
For 1990-2009 cars only
Makes
🢒
Pontiac
🢒
2009
🢒
G6
🢒
Engine
🢒
Engine Cooling
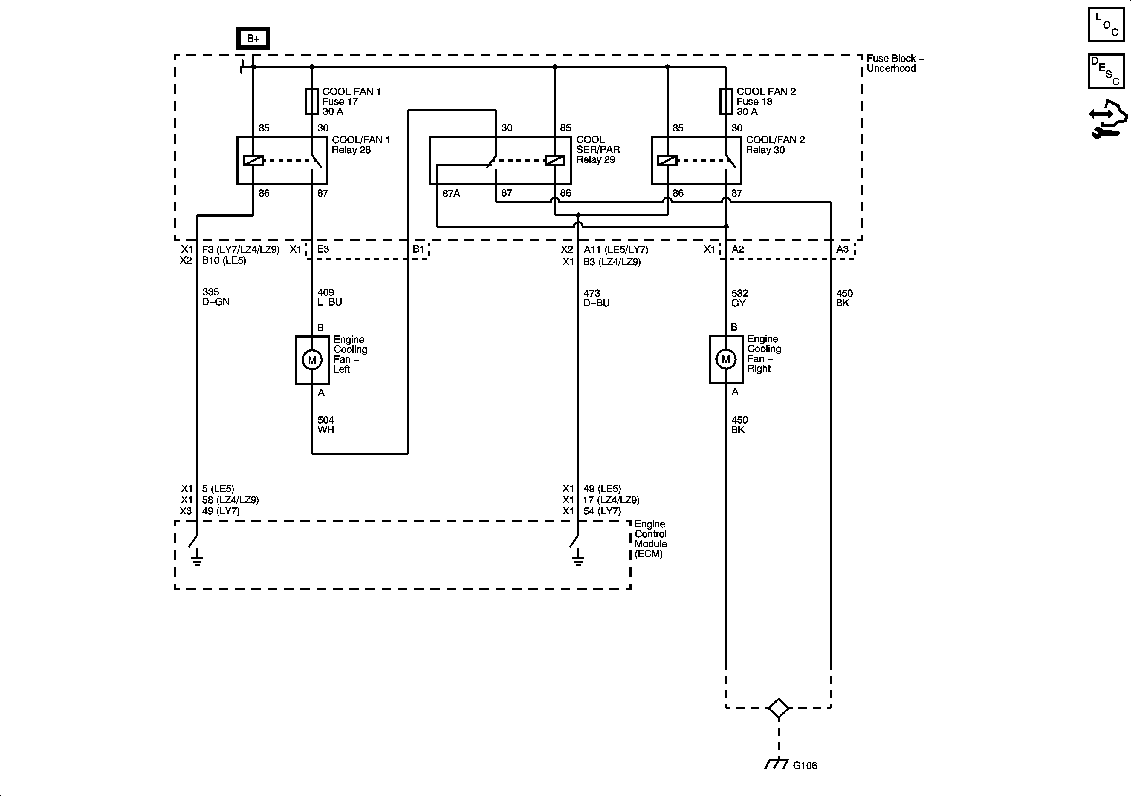
🢒 Engine Cooling Schematics
Cooling Fans